€ 450.000,- k.k.
Ruimte, rust én volop mogelijkheden op een prachtige plek!
In een van de meest geliefde woonwijken van de omgeving, omgeven door groen en rust, staat deze ruime hoekwoning op een bijzonder royaal perceel van maar liefst 601 m². Hier woon je aan het einde van een rustige straat, op een plek waar kinderen veilig buiten kunnen spelen en waar je alle voorzieningen letterlijk om de hoek vindt: scholen, speelplaatsen, openbaar vervoer en winkels. Kortom: een ideale gezinswoning met verrassend veel ruimte, zowel binnen als buiten.
Een warm welkom!
Je komt binnen in een ruime hal met modern toilet en aparte cv-ruimte. De lichte woonkamer biedt volop leefruimte en is voorzien van een trapkast en doorgang naar de fraaie glazen serre, een heerlijke plek om het hele jaar door te genieten van je tuin. De open keuken is praktisch ingedeeld, gelegen aan de voorzijde met zicht op de voortuin. Aangrenzend vind je de bijkeuken/berging, waar voorheen de garage was. Deze ruimte is perfect als hobbykamer, werkplek of zelfs een slaapkamer met badkamer op de begane grond.
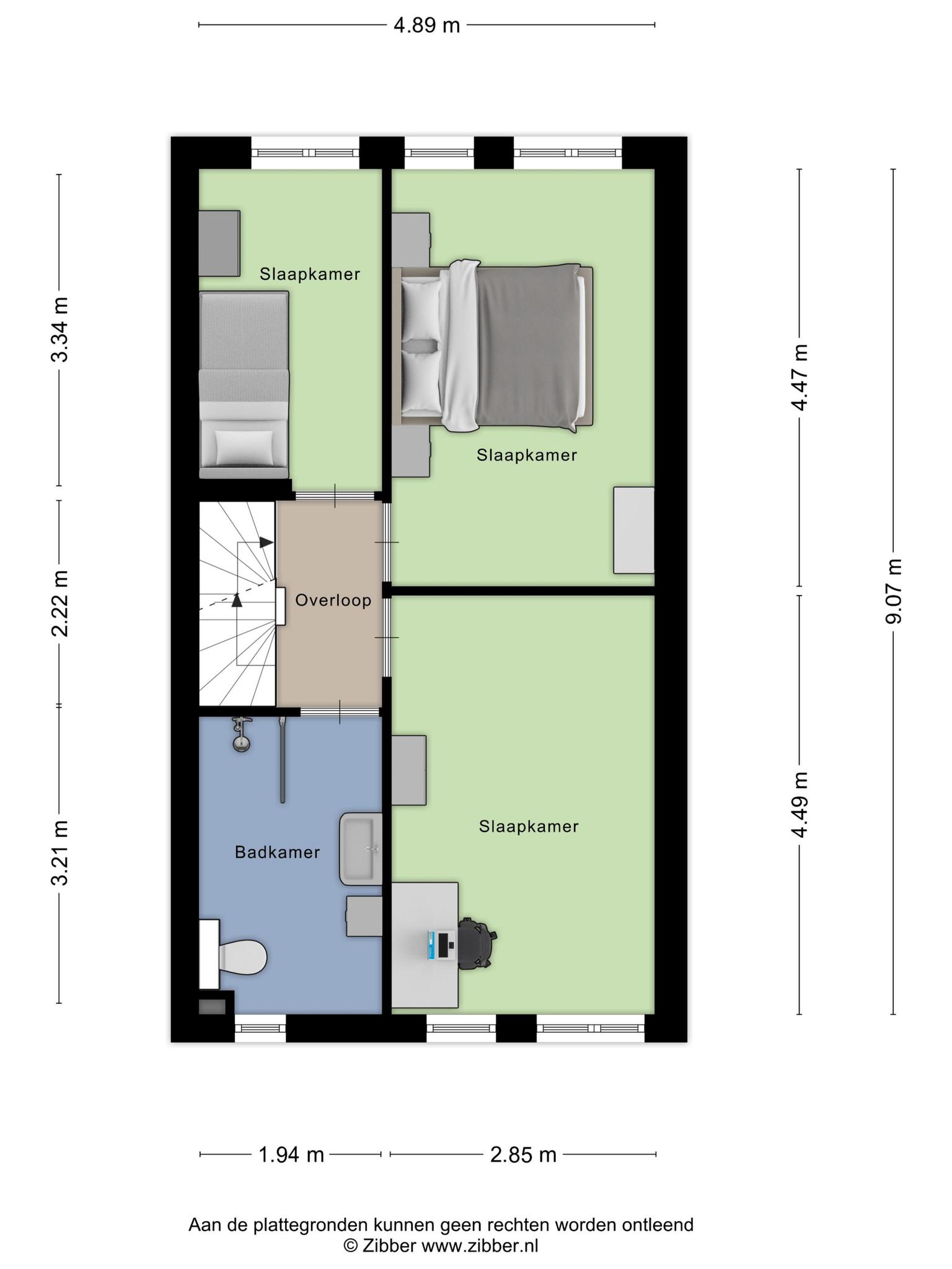
Op de 1e verdieping bevinden zich 3 comfortabele slaapkamers van ca. 13 m², 13 m² en 7 m². De moderne badkamer is compleet vernieuwd en uitgerust met een ruime inloopdouche, wastafel en een hangend toilet. De royale open zolder biedt volop potentie: of je nu extra slaapkamers wilt, een werkruimte of speelzolder – het is allemaal mogelijk.
Buitenleven op z’n best
De echte kers op de taart? Dat is zonder twijfel de buitenruimte. Hier leef je buiten, of je nu geniet van het groen, je vingers graag in de aarde steekt of gewoon op zoek bent naar plek voor je auto, caravan of camper. Met een royaal perceel van totaal maar liefst 601 m² is er ruimte in overvloed. Of je nu droomt van een weelderige tuin, een speelparadijs voor de kinderen of een multifunctioneel erf, hier kan het allemaal.
Deze woning biedt de ruimte en vrijheid die je zelden nog vindt, en op een locatie waar je echt fijn kunt wonen. Een buitenkans voor wie ruim en comfortabel wil wonen op een toplocatie. Kom je snel kijken? We laten je deze unieke plek graag in het echt ervaren.
Indeling van het huis:
Begane grond:
– ruime hal met toilet en CV-ruimte;
– woonkamer met trapkast en gashaard;
– glazen serre met 2 openslaande tuindeuren;
– open keuken;
– bijkeuken annex berging (voormalige garage).
1e verdieping:
– overloop;
– 3 slaapkamers resp. 13 m², 13 m² en 7 m²;
– fraaie badkamer met grote inloopdouche, wastafel en hangend toilet.
2e verdieping:
– grote open zolder, mogelijkheid voor het realiseren van extra (slaap-) kamers.
Extra’s die het verschil maken:
– maar liefst 601 m² grond, waarvan 338 m² momenteel in bruikleen, wat in eigendom kan worden verkregen;
– glazen serre;
– riante en moderne badkamer;
– zonnige tuin met veel privacy, perfect voor tuinliefhebbers
– ruime oprit met plek voor meerdere auto’s, caravan of camper
– gelegen in een rustige straat in een kindvriendelijke wijk met veel groen.
Diversen:
– Bouwjaar 1984;
– 3 slaapkamers, met mogelijkheid tot 1 of 2 extra kamers;
– de voormalige garage is nu in gebruik als bijkeuken, deze ruimte biedt gelegenheid voor hobbyruimte of slaapkamer
en badkamer op de begane grond;
– grote tuin, echt voor de tuinliefhebbers;
– parkeren op eigen terrein;
– Energielabel C.
- 124 m2
- 263 m2
- 4
Kenmerken Heufke 40
Overdracht
| Vraagprijs | € 450.000,- k.k. |
|---|---|
| Aanvaarding | In overleg |
Oppervlaktes en inhoud
| Perceel oppervlakte | 263 m2 |
|---|---|
| Woonoppervlakte | 124 m2 |
| Inhoud | 515 m3 |
Bouw
| Soort | Eengezinswoning |
|---|---|
| Bouwvorm | Bestaande bouw |
| Bouwjaar | 1984 |
| Dak type | Zadeldak |
| Isolatievormen | Muurisolatie, Vloerisolatie, Dubbelglas, HR glas |
| Energielabel | C |
Indeling
| Aantal verdiepingen | 3 |
|---|---|
| Aantal kamers | 5 |
| Aantal slaapkamers | 4 |
| Aantal badkamers | 1 |
Maandlasten
Ligging Heufke 40
Voorzieningen
Centraal gelegen informatie over de buurt
Aantal inwoners
In de gemeente
18.563