€ 1.250,- p.m
- Home>
- Bedrijfspanden>
- Huur Druten Nijverheidsweg 13a
Aan de rand van het bedrijventerrein Westerhout gelegen BEDRIJFSUNIT, prima geschikt voor commerciële doeleinden (showroom e.d.), maar ook voor opslag etc.
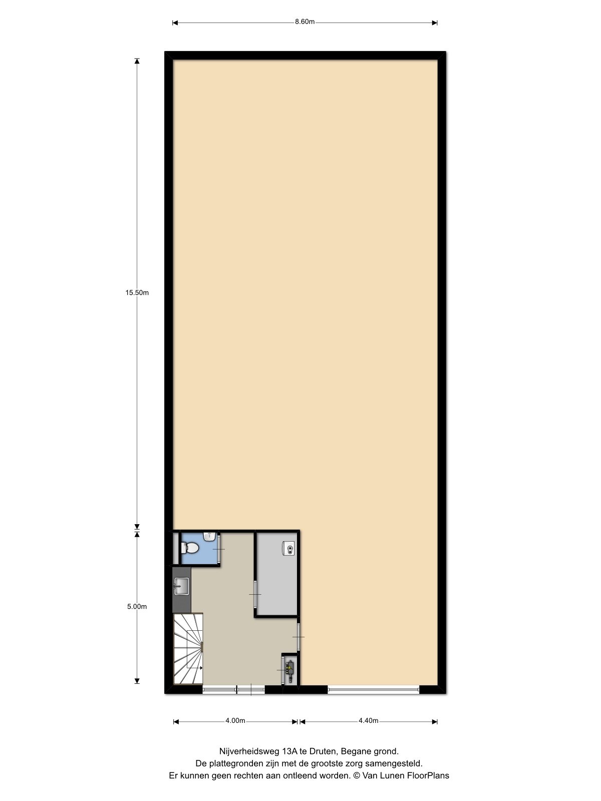
Deze unit beschikt over een entree met toilet, pantry, berging met c.v.-ketel en trapopgang naar een 20 m² grote kantoorkamer met aangrenzend showroom of opslagruimte van 133 m².
De hal op de begane grond is 156 m² groot, voorzien van een overheaddeur. Op de 1e etage bevindt zich een showroom of opslagruimte van ca. 133 m².
Op het omheinde voorterrein treft u een viertal privé parkeerplaatsen aan.
De hal is geïsoleerd en verwarmd.
Aanvaarding: kan spoedig.
Energielabel A+++
Huurprijs: € 1.250,= per maand.
- 289 m2
Kenmerken Nijverheidsweg 13a
Overdracht
| Status | Verhuurd |
|---|---|
| Prijs | € 1.250,- p.m |
| Aanvaarding | In overleg |
| Servicekosten | € 0,- |
Oppervlaktes en inhoud
| Soort Object | Bedrijfsruimte |
|---|---|
| Oppervlakte | 289 m2 |
| Bedrijfshal vrije hoogte | 257 cm |
Parkeergelegenheid
| Overdekt parkeren | 4 parkeerplaatsen |
|---|---|
| Onoverdekt parkeren | 4 parkeerplaatsen |
Bouw
| Bouwvorm | Bestaande bouw |
|---|---|
| Bouwjaar | 2003 |
| Bouwjaar toelichting |
Overig
| Bedrijfshal in units vanaf | 289 m2 |
|---|---|
| Locatie | BEDRIJVENTERREIN |
| Aantal lagen | 2 |