€ 570.000,- k.k.
“Leuker kunnen we het niet maken, wel makkelijker.”
Zouden ze dat in 1936 hier ook al hebben gezegd bij de belastingdienst? Want gaan we terug in de geschiedenis tot het jaar 1936, dan was dit gebouw oorspronkelijk in eerste gebruik als het belastingkantoor van Druten. Sinds die tijd is er veel gebeurd en is de Hogestraat thans dé winkelstraat geworden in het hart van het centrum van Druten.
De historie is momenteel nog steeds voelbaar in dit fraaie herenhuis. Authentieke details als glas-in-lood ramen, de fraaie buitengevel en de paneeldeuren aan de binnenzijde zijn nog steeds zichtbaar. Voor wie bekend is in Druten geldt: Wie kent dit huis niet? Samen met het naast gelegen huis vormt het een pronkstuk, wat direct in het oog springt. Tijdens het jaarlijkse Drutense festijn ‘Dickens Dag’ is het dan ook altijd prominent aanwezig en doet het denken aan de sfeer en het straatbeeld van die tijd.
Wat dit huis naast de ligging en de karakteristieke architectuur uniek maakt, is het riante perceel grond van ruim 570 m2. De achtertuin loopt meer dan 35 meter door tot aan de achterzijde en is fraai aangelegd met prachtige struiken en bomen. Er zijn meerdere terrassen en plekken om te zitten, waardoor je heerlijk kunt genieten van ruimte en privacy. Zowel aan de voor- als achterzijde is er parkeerplaats op eigen terrein.
Kortom: een huis om verliefd op te worden. En dat werden de huidige eigenaren zelf ook jaren geleden. Om dit gevoel te ervaren, nodigen wij u van harte uit om deze bijzondere woning te komen bezichtigen.
Indeling van het huis:
begane grond:
– hal met deur naar de gang;
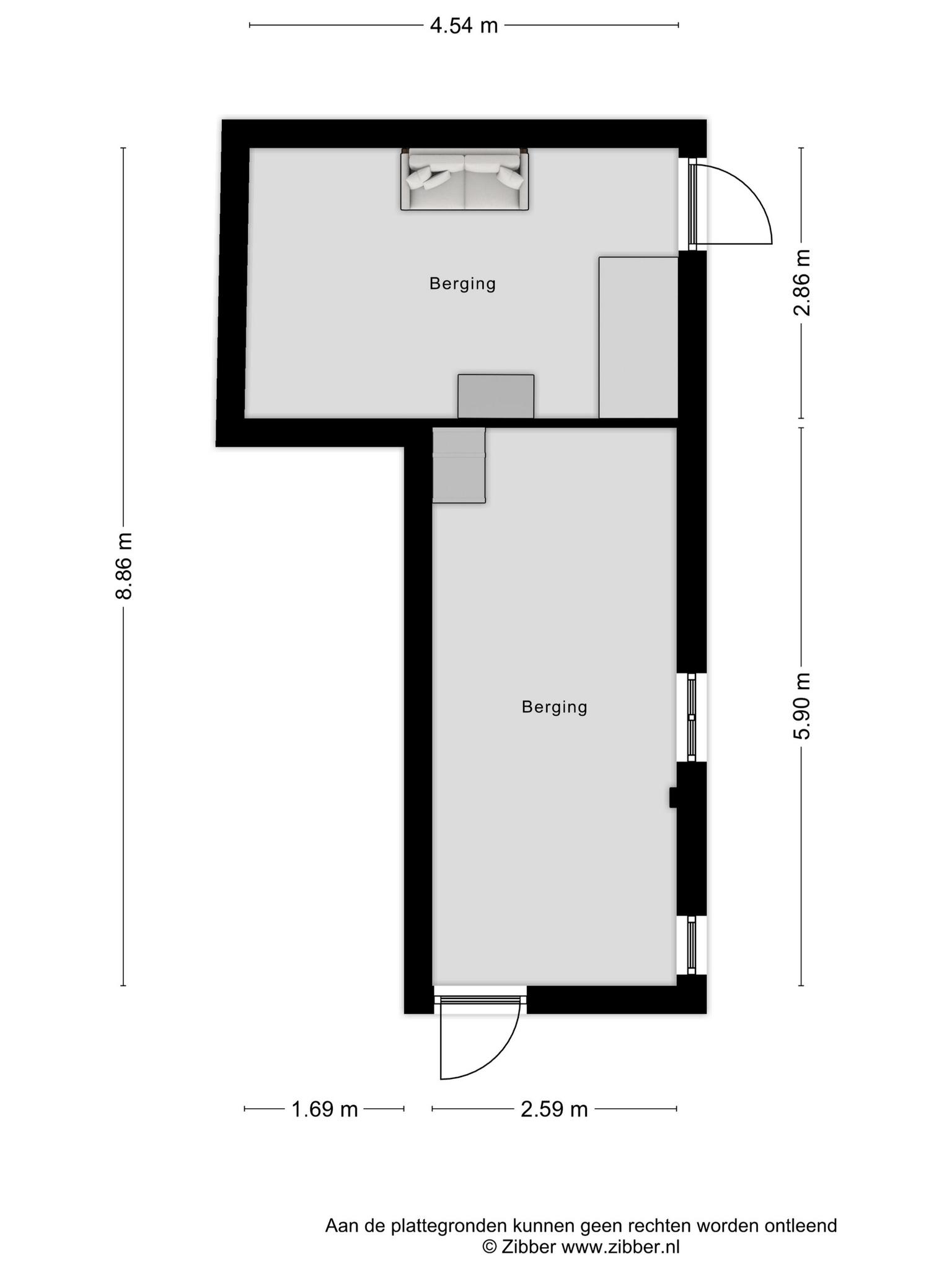
– provisiekelder;
– voorkamer annex garderobe met inbouwkast;
– toilet;
– woonkamer met erker, eiken parket vloer en 2 openslaande tuindeuren;
– keuken met tuindeur.
1e verdieping:
– overloop met vaste kast;
– toilet;
– waskamer met wasmachine aansluiting;
– 2 grote slaapkamers waarvan 1 met 2 openslaande balkondeuren;
– badkamer met ligbad en wastafelmeubel;
– balkon.
2e verdieping:
– ruime open zolderkamer met 2 dakkapellen en kastenwand;
– CV ruimte met CV combiketel;
– bergviering.
Diversen:
– bouwjaar 1936;
– voormalig belastingkantoor;
– authentieke details aanwezig zoals: glas-in-lood ramen en paneeldeuren;
– isolatie: muurisolatie, dakisolatie en isolerende beglazing;
– buitengevel gereinigd en geïmpregneerd;
– tuin van meer dan 35 meter diep;
– dubbele schuur en tuinhuis met veranda;
– meerdere parkeerplaatsen op eigen terrein;
– woonoppervlakte ruim 170 m2:
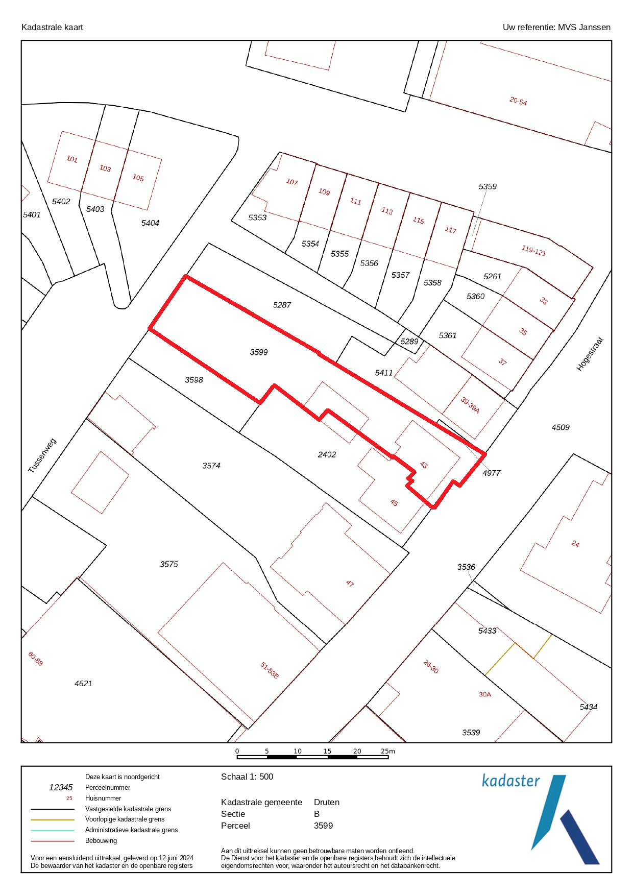
– perceel grootte 573 m2;
– Energielabel C.
- 173 m2
- 573 m2
- 3
Kenmerken Hogestraat 43
Overdracht
| Vraagprijs | € 570.000,- k.k. |
|---|---|
| Aanvaarding | In overleg |
Oppervlaktes en inhoud
| Perceel oppervlakte | 573 m2 |
|---|---|
| Woonoppervlakte | 173 m2 |
| Inhoud | 650 m3 |
Bouw
| Soort | Herenhuis |
|---|---|
| Bouwvorm | Bestaande bouw |
| Bouwjaar | 1936 |
| Dak type | Zadeldak |
| Isolatievormen | Dakisolatie, Muurisolatie, Dubbelglas |
| Energielabel | C |
Indeling
| Aantal verdiepingen | 3 |
|---|---|
| Aantal kamers | 6 |
| Aantal slaapkamers | 3 |
| Aantal badkamers | 1 |
Maandlasten
Ligging Hogestraat 43
Voorzieningen
Centraal gelegen informatie over de buurt
Aantal inwoners
In de gemeente
18.563
Leeftijd
in percentages van totaal
Huishoudsamenstelling
in percentages van totaal
35%
20% NL
36%
20% NL
30%
20% NL